Ohio University continues to upgrade ADA accessibility on campus with installation of path markers.
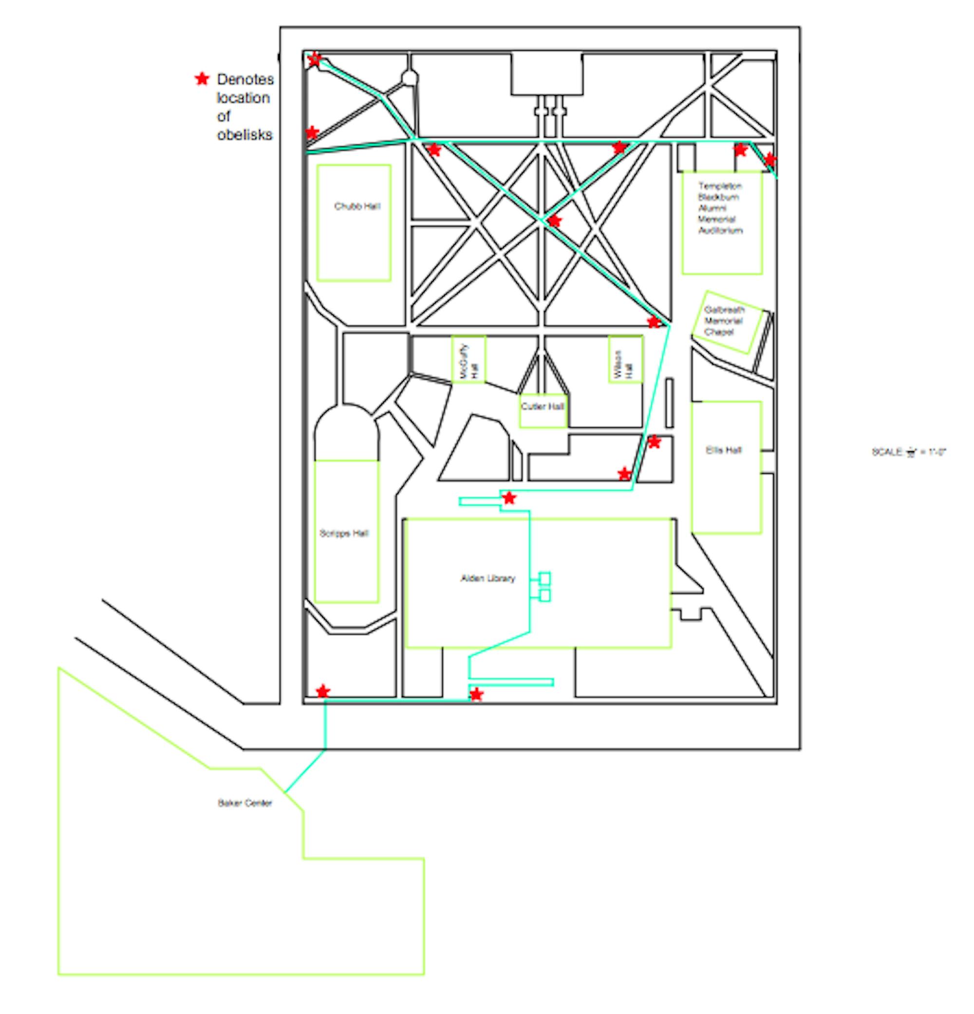
Ohio University is installing 12 black poles throughout campus to comply with the Americans with Disabilities Act, in keeping with an agreement made seven years ago.
Two prototype obelisk-shaped poles were installed in December: one near the Civil War Monument on College Green and the other near the northeast corner of Alden Library.
“The installation of ADA path of travel signs on the College Green is the last component to meet the requirements of a resolution agreement entered into in 2008 between Ohio University and the United States Department of Education Office for Civil Rights,” Joseph Lalley, senior associate vice president of Technologies and Administrative Services, said in an email.
It is not clear what the exact requirements of that 2008 agreement were.
The 12 poles will cost $35,000 and should all be installed by mid-April, Lalley said.
OU recently made several changes to its campus to meet standards set forth by the ADA, which was passed in 1990.
The ADA sets criteria to promote equal opportunities for people with disabilities.
{{tncms-asset app="editorial" id="975b3aa0-df9e-11e4-90c4-ef5676837164"}}
Other accessibility-related projects include the renovation of Lindley Hall and planned renovations to OU’s Aquatic Center.
The university also flattened the bricks on College Green to make the paths more accessible, said Laura Myers, chief of staff to the provost.
OU also has accessibility maps available online, which outline whether paths are “accessible,” an “accessible raised walk,” a “difficult route” or “not accessible.” The majority of College Green is currently labeled as a difficult route or not accessible, according to the map last updated in 2008.
“The signage is how people know if they have one of the maps, they can coordinate that with one of the signs,” Myers said. “(There’s been) several projects over the year to make the green a little more accessible.”
@Dinaivey
db794812@ohio.edu



